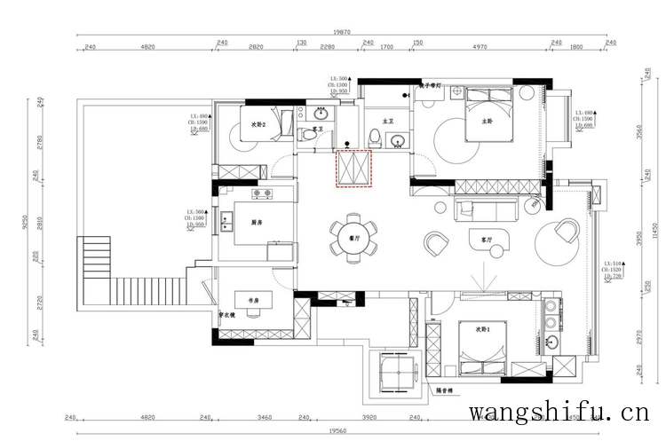
人生第一套房坚持改造重装,5个月逆袭成功,设计和方案都在这了
同样是买精装房,我家人生第一套坚持选择了改造重装,150㎡四室一厅打造现代风格,一梯一户把玄关移到外部,如今5个月实现硬装完工,装修经验和设计方案都在这了,晒出来分享给大家看看!


玄关:
我家是一梯一户的户型,经过小区物业同意,玄关直接移到门外空间,减少室内拥挤感。

客厅:
简单给客厅沙发背景墙处做个弧形存储区,工厂定制木饰面背景墙结合置物台,弧形边缘还能减轻打扫卫生的困难,后期放置花瓶装饰就很好看。


打通了客厅阳台之间的墙体,一是不愁通风采光,二是放大整体空间,

对于客厅区域,我还是更追求高级极简,所以最终选择艺术涂料的样式,和整体的现代风都比较搭配,中间掏空一部分,后期直接把电视嵌入处理就可以了。

侧边有一个隐形门,推开门可以来到家中的南次卧空间。

阳台:
打通后的阳台有一个小细节分享给大家,沙发背景墙最侧边延伸一部分弧形墙体,刚好可以遮挡住阳台空间嵌入式柜体的部分!虽然是做了开放式,但依然保证了空间的美观和隐私性。


阳台处这一部分空间,给两个窗户之间加了一个嵌入式柜体,后期可以存放扫把、拖把等各种清洁物品。

餐厅:
电表箱外露我完全不能忍,正好餐厅边要打造餐边柜,所以最后我请设计师打造三分离式柜体把电表箱完美隐藏了起来,看起来就要美观多了!

同时中间的留出的一部分置物台内部,也预留了2个插座,后期使用咖啡机、烤箱、榨汁机等小电器都可以。

书房:
对于办公看书的区域来说,还是希望存储空间能够达到充足。所以给L型墙面两边各做嵌入式柜体,其中一部分上方做个分离式的玻璃柜,后期手办、玩具刚好可以摆放在这里。


书房内侧还有一个门,可以穿过楼梯台阶,通往一楼外部的独立院子,一步到位做到动静结合。

主卧:
主卧有18.7㎡,床头侧边通向自带的4㎡卫生间。原本主卧和卫生间中间有一堵柜子隔断,直接拆除重装,换长虹玻璃门,透光不透视。


床头背景墙是设计师给我家工厂定制的木饰面护板墙,特地多给背景墙上方打造了一个悬空梳妆台,从卫生间淋浴完毕,刚好来到这里擦擦护肤品,依次满足淋浴→梳妆→休憩三大动线。

卧室衣柜卧室我是根据自家需求设计的,上中下分成三个区域。最上方比较高,平时放置被子等不常用物品。中间的黄金区域主要是用来挂放衣物,不易皱拿取方便。最下方一侧则是打造网格置物架+抽屉柜,收纳一些小物件刚好。


次卫:
我家空间还算比较宽敞,除主卫以外,在主卧和次卧之间,还有一个独立的次卫。留给客人使用。


刚好侧边有一部分墙体,两边我都请设计师打上了内嵌式柜子,一来是增加储物空间,二来刚好遮挡住卫生间,也要美观些。


这种可抽拉旋转多层鞋架真要给家里安排一个,节省空间每一层都可以自己设计高度,这样平底鞋和高跟鞋就都有了合适的空间,简直是小户型必备!

北次卧:
喜欢北次卧的超大L型窗户,通风透气的效果自是不用多说,侧面墙面还做了嵌入式的柜体,提供更多存储空间。


南次卧:
南次卧总共有13.5㎡,不想再额外放置床头柜了,所以侧边的柜体按照床铺等高的高度,挖空一小块,多出的部分刚好做置物台。



好啦,这就是我家硬装全部的完工现场,现在已经有点期待软装经常彻底完工现场了,后期持续更新,到时候再分享给大家看看~