小巷里的住宅改造旧房改造(老旧巷道改造)
本工程项目坐落于我国台南县嘉义的老城区,是两个坐落于巷子里的铺面改建工程项目。在南韩,建在狭长的场馆上的建筑物经常出现,而此种类别的建筑物常常会存有内部空间新体验太过违和和缺少大自然强光等难题。除此之外,在此类建筑物中,栏杆一般来说会将建筑物的室外内部空间拆分开,引致室外卧室彼此间缺少联络。
因而,建筑物师的结构设计最终目标就显得很明晰了:透过采用聚四氟乙烯、镜片和修正地板视角等形式,再次鼓励和组织机构强光,进而缔造出两个光线和育苗照明设备相交错的光亮内部空间,缔造一类宽敞的日常生活气氛。
除此之外,建筑物师还关上了室外公用内部空间中无谓的天井,进而使强光能渗入进栏杆内部空间,将原写字楼相对而言的内部空间打造成了两个朝气蓬勃的壳状内部空间,为居民在公用内部空间中的沟通交流和交互提供更多了更多的良机。
工程项目重要信息
结构设计公司:metrics architecture studio
工程项目类别:建筑物结构设计、铺面改建、平面结构设计、竹叶
边线:我国台南县
关键字: 石材、镜片、竹叶、建筑物结构设计、铺面改建、平面结构设计
▽改建后光亮的餐厅【图1】

▽内部空间细部 【图2-图11】









▽概念草图【图12】

▽室外内部空间渲染图【图13】

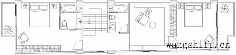
▽写字楼平面图【图14】

▽ 写字楼剖面图【图15】

来源网站:www.archdaily.com
翻译整理:WAQI-Siwen
更多 WAQI 原创内容
乡村改建/旧改/市政
为有源头活水来|无锡市梁溪区政府前区内部空间结构设计|无锡市梁溪区政府前区内部空间结构设计|无锡市梁溪区政府前区内部空间结构设计|无锡市梁溪区政府前区内部空间结构设计|无锡市梁溪区政府前区内部空间结构设计
从手稿开始|两个旧厂房的改建结构设计|两个旧厂房的改建结构设计|两个旧厂房的改建结构设计|两个旧厂房的改建结构设计|两个旧厂房的改建结构设计